Cora Home
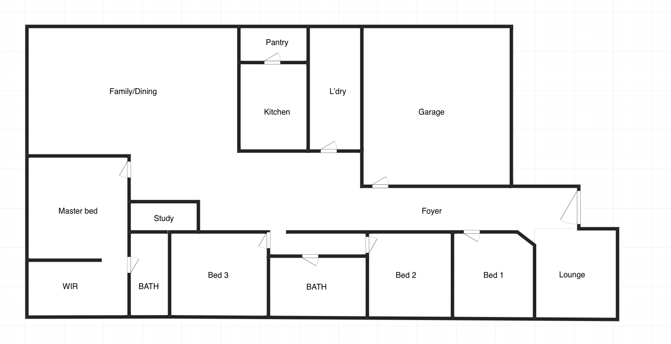
Cora is a stunningly designed home with all of the fundamental features of a home. The house includes four bedrooms, two bathrooms, and two garages and is 375 square metres in size. For a busy family, the house is great
Cora is a stunningly designed home with all of the fundamental features of a home. The house includes four bedrooms, two bathrooms, and two garages and is 375 square metres in size. For a busy family, the house is great